欢迎来到上海毓翔,公司主营产品:直通视镜,管道视镜,呼吸人孔,阻爆轰型阻火器

工作时间:周一到周五(8:00-18:00)节假日除外 网站地图 400-8166-958

您的位置:首页 > 产品中心 > 过滤器系列

篮式过滤器

更新:2020-07-17 04:45:27 点击:195

产品品牌:

产品型号:

产品描述:

篮式过滤器篮式过滤器价格篮式过滤器厂家...
在线咨询

售前咨询:400-8166-958/173-0216-8903

产品介绍

一、产品简介:
       篮式过滤器属于管道粗过滤器系列,也可用于气体或其他介质大颗粒物过滤,安装在管道上能除去流体中的较大固体杂质,使机器设备(包括压缩机、泵等)、仪表能正常工作和运转,达到了稳定工艺过程,保障安全生产的作用。当流体进入置有一定规格滤网的滤筒后,其杂质被阻挡,而清洁的滤液则由过滤器出口排出,当需要清洗时,只要将可拆卸的滤筒取出,处理后重新装入即可继续使用,因此,使用维护极为方便,比较适用于流量比较大的流体输送管道。
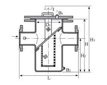
二、产品结构:
 

直通平底篮式过滤器(SRBI)

直通弧底篮式过滤器(SRBII)
  DN     D1     L     H     H1     H2   过滤面积m2 
 25     1"  76  180  260 410  160 0.0162
50 2" 108 260 300 560 170 0.0315
80 3" 159 340 400 719 250 0.0590
100 4" 219 400 470 881 300 0.1077
125 5" 273 480 550 1079 360 0.1759
150 6" 273 500 630 1276 420 0.2910
200 8" 325 560 780 1397 530 0.4076
250 10" 420 660 930 1544 640 0.5017
300 12" 450 750 1200 1739 840 0.6800
三、产品技术参数:
  型号
 Model
SRBI、SRBII  螺帽螺栓
 Bolt/Nut
CS 304 316 316L
规格 
Size
DN25~500 HG/T20592
PN0.6~5.0 FF、RF
法兰标准
Flanges

HG GB SH HGJ JB ANSI JIS

壳体材质 
Body Materials

CS 304 316 316L

工作温度
Ambient Temperature

CS:-30~350℃ SS:-80~480℃

滤芯材质 
Elment

304 316 316L

制造检测标准
Manufacture inspection

SH/T3411-2017 HG/T21637-1991

过滤精度
Pore size

10~300(目/in)

连接形式
Jonit type
  法兰连接 对焊连接 螺纹连接
Flange Butt Welding Threaded
密封垫片 
Gasket Seal
丁腈橡胶 聚四氟乙烯 金属垫片
NBR PTFE Metal Gasket
外表
Coating

CS:Paint SS:No Paint 

四、安装维护:
       1、篮式过滤器一般水平安装,进出口方向与阀体上的箭头方向应保持一致,适合流量比较大的流体输送管道;
       2、过滤器工作一段时间后,滤芯内沉淀了一定的杂质,压力降增大,流速会下降,需及时清除过滤器芯内的杂质;
       3、清洗杂质时,过滤芯上的不锈钢钢丝网不能变形或损坏,否则,再装上去的过滤器,过滤效果将达不到设计要求;
       4、如发现不锈钢钢丝网变形或损坏,应立即拆卸更换。
五、订货须知:
       订货时请确定以下参数:1、口径 2、材质 3、工作压力 4、过滤精度 5、介质 6、法兰标准,以便提供合适的产品。

上一篇:T型过滤器

下一篇: Y型过滤器

一键拨号 一键咨询